Проектировка фундамента и крыши: основные положения готовых проектов коттеджей
Чтобы подобрать правильную разновидность фундамента для коттеджа, необходимо в первую очередь изучить особенности почвы на участке. Любой проект обязательно должен содержать информацию о том, какая нагрузка будет оказываться на основание. Наиболее распространенный фундамент, который используется в отечественном строительстве, – ленточный.
Проект должен включать сведения о коммуникациях, которые будут прокладываться к дому, минуя стены фундамента. Следует быть очень внимательными при выборе бесплатных проектов домов и коттеджей. Чертежи и фото готовых жилых построек не всегда соответствуют индивидуальным особенностям участка.
Наиболее распространенный фундамент в отечественном строительстве – это ленточный
Классическим материалом для возведения стен является кирпич, однако в последнее время его позиции на строительном рынке ослабли. Популярными сегодня являются дома из пенобетона и газобетона. Это обуславливается низкой теплопроводностью данных материалов.
Что касается кровли, то она чаще всего имеет два ската. Односкатные крыши также встречаются. Для возведения стропил используется деревянный брус, а обрешетка монтируется из досок. Специалисты рекомендуют заказывать проекты коттеджей под ключ. Составление и реализация такого плана требуют специальных знаний и навыков, поэтому самостоятельно заниматься этими видами работ нежелательно.
В качестве материала для кровли чаще всего применяется мягкая черепица. На втором месте располагается металлический аналог данного материала. Металлическая кровля организуется проще. Такая конструкция рекомендуется специалистами как надежное и долговечное покрытие.
Проектировка крыши требует специальных знаний и навыков
Планировка двухэтажных домов: красивые проекты и их преимущества
Ассортимент различных проектных решений в настоящее время невероятно широк. Подбор наиболее подходящего из них – ответственное мероприятие, которое требует учета множества факторов. Двухэтажные коттеджи отличаются от одноярусных построек. Для того чтобы не ошибиться при выборе строительного плана, рекомендуется изучить особенности данного вида сооружений.
В первую очередь необходимо отметить, что выбор проекта двухэтажного коттеджа подходит в том случае, когда на участке недостаточно места для сооружения одноярусной постройки.
В стандартный проект, взятый из сети, можно внести некоторые изменения. Однако корректировка планировочных особенностей здания не должна вредить надежности конструкции.
Возведение коттеджа, имеющего два яруса, позволяет максимально сэкономить площадь участка и использовать ее для сооружения хозяйственных и других построек. Двухэтажные конструкции смотрятся более презентабельно и уютно, причем открываются дополнительные возможности для реализации дизайна. Чертеж коттеджа такого типа может включать в себя балкон, украшенный балюстрадой. Архитектурных решений для отделки фасадов в этом случае существует гораздо больше.
Строительство двухэтажного коттеджа позволяет максимально сэкономить площадь участка
Наиболее подходящим решением для применения второго этажа является обустройство на нем спальных комнат и санузла. Планировка первого яруса предполагает размещение гостиной, кухни, санузла и кладовых помещений.
Индивидуальные проекты загородных домов и коттеджей
В настоящее время каждый может найти в сети готовый проект коттеджа или же загородного дома, поэтому составление индивидуального плана вовсе не является обязательным пунктом строительства. Однако существуют ситуации, когда такой вариант не может быть исполнен. Рассмотрим, какие факторы влияют на необходимость разработки индивидуального проекта.
Основная причина, из-за которой возникает потребность в создании специального плана, заключается в особенностях рельефа участка на месте будущего строительства. Например, территория может быть наклонной. Нередко случается, что реализовать стандартный проект невозможно из-за естественного водоема, располагающегося на участке.
А также индивидуальный план загородного дома нужен в том случае, когда хозяева хотят выполнить нестандартную задумку или, например, объединить все хозяйственные сооружения на участке.

Проект коттеджа должен учитывать смету с указанием всех необходимых расходов
Перед тем как приступить к созданию такого плана, потребуется ознакомиться с основными этапами этой работы.
Вначале, как правило, заказчик проводит обсуждение с архитектором. На этом этапе учитываются все нюансы строительства, такие как площадь дома, его габариты и т. п. Далее подбирается наиболее подходящий вариант планировки помещений внутри постройки. Затем разрабатывается чертеж фасада и генеральный план строительства. Проект коттеджа обязательно должен учитывать смету, в которой указываются все необходимые расходы.
На следующем этапе создается архитектурный план, который представляет собой альбом, содержащий чертежи и рисунки. Заключительная фаза проектирования включает в себя подготовку рабочей документации, которая регулирует порядок строительства.
Индивидуальный план является документом, который имеет множество достоинств по сравнению с любым стандартным проектом
Очень важно, что в этом случае учитываются все пожелания заказчика

Индивидуальный план коттеджа нужен, когда хозяева хотят выполнить нестандартную задумку
С чего начать составление плана коттеджа и строительство
Наличие земельного участка позволяет возвести в его пределах красивый дом, построенный по стандартному или индивидуальному плану. Многих людей интересует вопрос о том, с чего требуется начинать работу по составлению проекта.
Самостоятельно подготовить такой документ практически невозможно, так как для этого необходимо обладать обширными знаниями, охватывающими несколько строительных областей. Лучше всего обратиться за квалифицированной помощью к специалистам в дизайнерское бюро. Совместно с профессионалами осуществляется выбор лучшего проекта дома, при этом реализуется возможность учесть особенности территории и финансовые способности заказчиков.
Как правило, на создание специального плана уходит несколько недель. После составления оптимального для конкретной ситуации проекта можно приступить к строительным работам.
При желании можно воспользоваться бесплатным проектом коттеджа. В сети находится довольно много готовых стандартизированных решений. Это позволит сэкономить финансы, так как в данном случае не придется платить архитекторам.

Самостоятельно подготовить план коттеджа очень сложно, поэтому лучше обратиться к специалистам
Проекты коттеджей: из каких материалов можно построить дом
Наиболее распространенным материалом, который используется в строительстве, на сегодняшний день является кирпич. Его применение позволяет возвести основательное и надежное сооружение, которое простоит не одно десятилетие. Основным преимуществом таких домов является прочность, а также стоит отметить их солидный внешний вид.
Проекты красивых коттеджей из кирпича позволяют убедиться в преимуществах данного материала. Существует несколько видов кирпича, различающихся по цвету. Это дает возможность каждому подобрать необходимый вариант с учетом личных требований.
Снизить стоимость постройки коттеджа позволяет применение технологии каркасного строительства
В каталогах проектов коттеджей часто встречаются варианты построек, выполненных из древесины. Деревянные дома относятся к экологически чистым сооружениям и могут создаваться из различных видов сырья. В качестве материала используются оцилиндрованные бревна или клееный брус, который появился сравнительно недавно.
Снизить общую стоимость реализации проекта постройки позволяет применение технологии каркасного строительства. В этом случае приветствуется комбинирование различных стройматериалов. Преимуществом таких построек является быстрая скорость их возведения.
Проекты коттеджей: из каких материалов можно построить дом
Наиболее распространенным материалом, который используется в строительстве, на сегодняшний день является кирпич. Его применение позволяет возвести основательное и надежное сооружение, которое простоит не одно десятилетие. Основным преимуществом таких домов является прочность, а также стоит отметить их солидный внешний вид.
Проекты красивых коттеджей из кирпича позволяют убедиться в преимуществах данного материала. Существует несколько видов кирпича, различающихся по цвету. Это дает возможность каждому подобрать необходимый вариант с учетом личных требований.
Еще один распространенный материал, который используется при строительстве коттеджей, – камень. Этот натуральный материал имеет довольно высокую стоимость, однако существует его искусственный аналог, цена которого гораздо ниже. При этом технические характеристики искусственного камня ничем не хуже. Здания, возведенные из этого материала, отличаются презентабельным внешним видом, отлично сохраняют тепло и имеют длительный срок службы.
Снизить стоимость постройки коттеджа позволяет применение технологии каркасного строительства
В каталогах проектов коттеджей часто встречаются варианты построек, выполненных из древесины. Деревянные дома относятся к экологически чистым сооружениям и могут создаваться из различных видов сырья. В качестве материала используются оцилиндрованные бревна или клееный брус, который появился сравнительно недавно.
Снизить общую стоимость реализации проекта постройки позволяет применение технологии каркасного строительства. В этом случае приветствуется комбинирование различных стройматериалов. Преимуществом таких построек является быстрая скорость их возведения.
Это интересно: Чертежи дома — от наброска и эскиза до готового проекта
Проект дома-коттеджа с мансардой: универсальное решение
Для того чтобы получить двухэтажный дом, нет необходимости в обязательном возведении второго яруса. Современные здания предусматривают наличие жилых комнат под кровельным пространством, которое при этом используется максимально функционально. Наглядно оценить преимущества такого архитектурного решения позволяет изучение фото бесплатных проектов и чертежей домов-коттеджей.
Первый и второй ярус в этом случае сообщаются за счет лестницы. Такая архитектура очень популярна в Англии и многих других европейских странах, так как отличается простотой, удобством и функциональностью.
Недостатком такого варианта загородного коттеджа является то, что помещения, обустроенные под кровлей, будут иметь скошенные потолки. Однако при грамотном обустройстве интерьера этот минус можно легко превратить в очередное достоинство.
Современные здания предусматривают наличие жилых комнат и под кровельным пространством
Мансарду можно обустроить не только в кирпичном, но и в деревянном коттедже. Проект составляется с учетом строительных норм и правил. Любые отклонения от них могут привести к строительным ошибкам.
Жилое сооружение, имеющее мансарду под крышей, является отличным решением, которое позволяет сэкономить и увеличить общую площадь здания. При желании к фасаду дома можно пристроить балкон, имеющий вход с мансарды.
Индивидуальные проекты загородных домов и коттеджей
В настоящее время каждый может найти в сети готовый проект коттеджа или же загородного дома, поэтому составление индивидуального плана вовсе не является обязательным пунктом строительства. Однако существуют ситуации, когда такой вариант не может быть исполнен. Рассмотрим, какие факторы влияют на необходимость разработки индивидуального проекта.
Основная причина, из-за которой возникает потребность в создании специального плана, заключается в особенностях рельефа участка на месте будущего строительства. Например, территория может быть наклонной. Нередко случается, что реализовать стандартный проект невозможно из-за естественного водоема, располагающегося на участке.
А также индивидуальный план загородного дома нужен в том случае, когда хозяева хотят выполнить нестандартную задумку или, например, объединить все хозяйственные сооружения на участке.

Проект коттеджа должен учитывать смету с указанием всех необходимых расходов
Перед тем как приступить к созданию такого плана, потребуется ознакомиться с основными этапами этой работы.
Вначале, как правило, заказчик проводит обсуждение с архитектором. На этом этапе учитываются все нюансы строительства, такие как площадь дома, его габариты и т. п. Далее подбирается наиболее подходящий вариант планировки помещений внутри постройки. Затем разрабатывается чертеж фасада и генеральный план строительства. Проект коттеджа обязательно должен учитывать смету, в которой указываются все необходимые расходы.
На следующем этапе создается архитектурный план, который представляет собой альбом, содержащий чертежи и рисунки. Заключительная фаза проектирования включает в себя подготовку рабочей документации, которая регулирует порядок строительства.
Индивидуальный план является документом, который имеет множество достоинств по сравнению с любым стандартным проектом
Очень важно, что в этом случае учитываются все пожелания заказчика

Индивидуальный план коттеджа нужен, когда хозяева хотят выполнить нестандартную задумку
С чего начать составление плана коттеджа и строительство
Наличие земельного участка позволяет возвести в его пределах красивый дом, построенный по стандартному или индивидуальному плану. Многих людей интересует вопрос о том, с чего требуется начинать работу по составлению проекта.
Самостоятельно подготовить такой документ практически невозможно, так как для этого необходимо обладать обширными знаниями, охватывающими несколько строительных областей. Лучше всего обратиться за квалифицированной помощью к специалистам в дизайнерское бюро. Совместно с профессионалами осуществляется выбор лучшего проекта дома, при этом реализуется возможность учесть особенности территории и финансовые способности заказчиков.
Как правило, на создание специального плана уходит несколько недель. После составления оптимального для конкретной ситуации проекта можно приступить к строительным работам.
При желании можно воспользоваться бесплатным проектом коттеджа. В сети находится довольно много готовых стандартизированных решений. Это позволит сэкономить финансы, так как в данном случае не придется платить архитекторам.

Самостоятельно подготовить план коттеджа очень сложно, поэтому лучше обратиться к специалистам
Планировка двухэтажных домов: красивые проекты и их преимущества
Ассортимент различных проектных решений в настоящее время невероятно широк. Подбор наиболее подходящего из них – ответственное мероприятие, которое требует учета множества факторов. Двухэтажные коттеджи отличаются от одноярусных построек. Для того чтобы не ошибиться при выборе строительного плана, рекомендуется изучить особенности данного вида сооружений.
В первую очередь необходимо отметить, что выбор проекта двухэтажного коттеджа подходит в том случае, когда на участке недостаточно места для сооружения одноярусной постройки.
В стандартный проект, взятый из сети, можно внести некоторые изменения. Однако корректировка планировочных особенностей здания не должна вредить надежности конструкции.
Возведение коттеджа, имеющего два яруса, позволяет максимально сэкономить площадь участка и использовать ее для сооружения хозяйственных и других построек. Двухэтажные конструкции смотрятся более презентабельно и уютно, причем открываются дополнительные возможности для реализации дизайна. Чертеж коттеджа такого типа может включать в себя балкон, украшенный балюстрадой. Архитектурных решений для отделки фасадов в этом случае существует гораздо больше.

Строительство двухэтажного коттеджа позволяет максимально сэкономить площадь участка
Наиболее подходящим решением для применения второго этажа является обустройство на нем спальных комнат и санузла. Планировка первого яруса предполагает размещение гостиной, кухни, санузла и кладовых помещений.
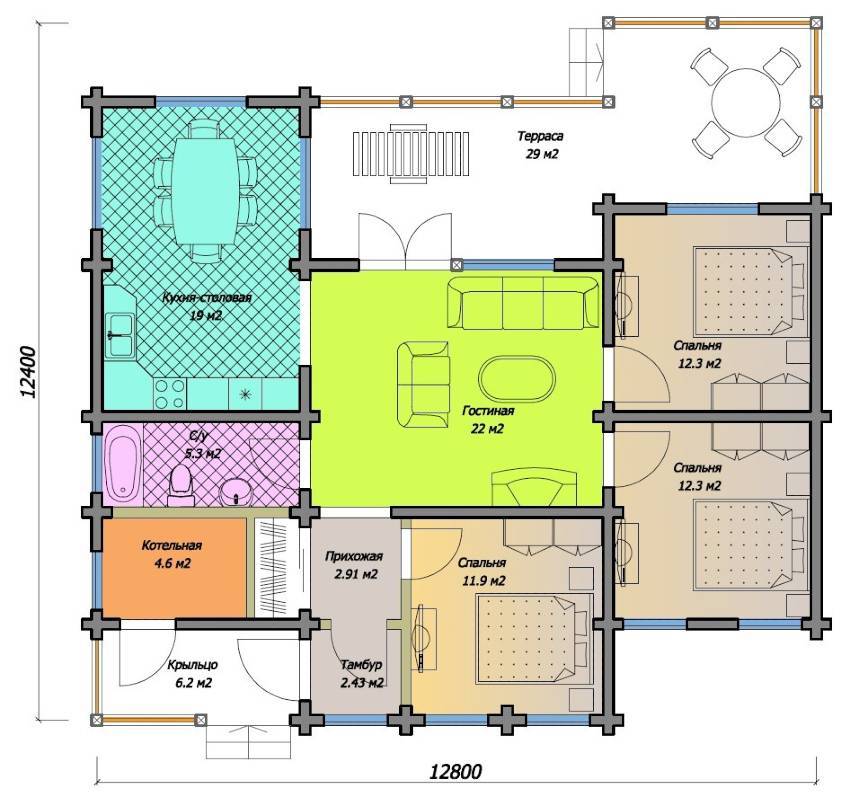
Одноэтажные проекты домов: фото и особенности планировки
При выборе такого варианта необходимо учесть, что для создания одноэтажного коттеджа потребуется значительная площадь. Таким образом, можно сделать вывод, что для небольших территорий данная постройка не является выигрышным решением. Перед началом строительства коттеджа необходимо заранее определить количество хозяйственных построек, которые будут находиться на участке, а также рассчитать площадь главного сооружения.

Некоторые бесплатные проекты коттеджей имеют не самую удачную планировку
Если территория позволяет выполнить одноэтажный коттедж, то тогда можно приступить к разработке его проекта. Основным преимуществом такого здания является его более низкая стоимость в сравнении с двухэтажными конструкциями.
При составлении проектов одноэтажных домов и коттеджей необходимо обратить внимание на несколько моментов. При подготовке такого плана принято разграничивать жилую и хозяйственную части здания
Жилыми традиционно считаются следующие комнаты:
- спальни;
- детские;
- кабинеты.
В свою очередь, хозяйственные помещения должны располагаться на противоположной стороне дома. К ним относятся гостиная, санузел, а также кухня. Одноэтажный коттедж имеет и другие преимущества. Например, такое строение нуждается в менее основательном фундаменте.
В проектах одноэтажных коттеджей нет необходимости в сложной разводке коммуникаций
Площадь в одноэтажном доме можно использовать более рационально. В некоторых случаях большие комнаты (например, гостиную) подразделяют на функциональные сегменты. Зонирование полезного пространства позволяет добиться максимальной функциональности помещения.
У одноэтажных коттеджей, как и у любого другого архитектурного сооружения, существуют и свои недостатки. Некоторые бесплатные проекты коттеджей имеют не самую удачную планировку. В результате отдельные помещения могут оказаться проходными, что неблагоприятно отразится на комфортабельности проживания в данной постройке.
При возведении такого здания необходимо уделить особое внимание кровле. Площадь крыши в этом случае будет больше, поэтому ее обустройство потребует довольно внушительных затрат
Одноэтажные проекты домов целесообразно воплощать в жизнь на больших участках
Проект коттеджа с гаражом: преимущества строительства
Наиболее популярный вариант коттеджа учитывает наличие гаража, который может являться пристройкой к жилищу. Данное решение имеет множество преимуществ. Гараж, имеющий совместную стену с коттеджем, позволяет рационально распределить полезное пространство на участке.

Гараж, имеющий совместную стену с коттеджем, позволяет существенно сэкономить на стройматериалах
Также следует отметить, что наличие совместной стены устраняет необходимость выхода на улицу. В такую пристройку можно попасть прямиком из дома, что очень удобно. При составлении чертежа проекта дома с гаражом необходимо учесть, что пристройка требует достаточного количества свободной площади. Помимо этого, понадобится пространство для организации максимально удобного подъезда.
Отдельно стоящие гаражи неудобны тем, что они нуждаются в индивидуальной отопительной системе. Безусловно, гораздо проще подключить постройку к общедомовой коммуникации. Кроме этого, гараж такого типа можно оборудовать под подсобное помещение или кладовую.
Цена проекта коттеджа с гаражом будет выше, если заказывать архитектурную документацию у специалистов. Однако стоимость такого планирования полностью окупается со временем. Современные возможности в строительной сфере позволяют обустроить функциональный и удобный коттедж с гаражной пристройкой, которая не только не испортит дизайн сооружения, но и подчеркнет его.

Цена проекта коттеджа с гаражом будет выше, если заказывать архитектурную документацию у специалистов
Некоторые рекомендации по составлению проекта дачи, загородного дома или коттеджа
Проект коттеджа, как уже говорилось выше, без труда можно найти и скачать в сети. Перед тем как приступить к его реализации, необходимо определить, насколько оптимально данный план соответствует особенностям конкретного участка. При этом следует учитывать такие индивидуальные особенности территории, как рельеф, состав почвы, а также наличие подземных вод.
Бесплатные проекты домов и коттеджей не всегда подходят в конкретном случае. В результате появляется необходимость в составлении индивидуального плана
Следует обратить внимание на основные положения, которые содержит данный документ:
- определение места строительства;
- площадь жилого сооружения;
- стройматериалы, которые будут использоваться во время возведения коттеджа;
- разновидность основания постройки;
- расположение инженерных коммуникаций.

При выборе дизайна коттеджа рекомендуется обратить внимание на тип и рельеф местности
Стоимость составления индивидуального проекта зависит от многих факторов. На итоговую цифру в первую очередь влияет площадь постройки. Стоимость проектов указывается в рублях и начинается от 300 руб. за 1 м². Стоит отметить, что это касается архитектурно-строительного планирования, которое содержит абсолютно всю необходимую информацию, касающуюся будущей постройки. Существуют и менее дорогостоящие проекты. Цена коттеджа под ключ и предварительная разработка индивидуального плана к нему также зависят от тарифов компании, в которую обратились хозяева участка.
При выборе дизайна будущего здания рекомендуется обратить внимание на тип местности. Например, если участок располагается в непосредственной близости к лесу, то тогда следует выбрать проект коттеджа из бруса или бревен
И, наконец, готовый план всегда можно переделать. Адаптация стандартного строительного проекта под индивидуальные особенности конкретного участка практикуется довольно часто.
При выборе проекта коттеджа необходимо учесть множество нюансов. Температура в регионе, удаление от городской черты, особенности территории и другие факторы оказывают влияние на выбор архитектурной документации. Оптимальным вариантом является заказ индивидуального проекта у профессионалов.
Проект коттеджа с гаражом: преимущества строительства
Наиболее популярный вариант коттеджа учитывает наличие гаража, который может являться пристройкой к жилищу. Данное решение имеет множество преимуществ. Гараж, имеющий совместную стену с коттеджем, позволяет рационально распределить полезное пространство на участке.

Гараж, имеющий совместную стену с коттеджем, позволяет существенно сэкономить на стройматериалах
Также следует отметить, что наличие совместной стены устраняет необходимость выхода на улицу. В такую пристройку можно попасть прямиком из дома, что очень удобно. При составлении чертежа проекта дома с гаражом необходимо учесть, что пристройка требует достаточного количества свободной площади. Помимо этого, понадобится пространство для организации максимально удобного подъезда.
Отдельно стоящие гаражи неудобны тем, что они нуждаются в индивидуальной отопительной системе. Безусловно, гораздо проще подключить постройку к общедомовой коммуникации. Кроме этого, гараж такого типа можно оборудовать под подсобное помещение или кладовую.
Цена проекта коттеджа с гаражом будет выше, если заказывать архитектурную документацию у специалистов. Однако стоимость такого планирования полностью окупается со временем. Современные возможности в строительной сфере позволяют обустроить функциональный и удобный коттедж с гаражной пристройкой, которая не только не испортит дизайн сооружения, но и подчеркнет его.

Цена проекта коттеджа с гаражом будет выше, если заказывать архитектурную документацию у специалистов



























































