Если парная является пристройкой к жилищу
При строительстве необходимо придерживаться следующих рекомендаций:
- В проекте пристройки нужно указать материалы, которые будут использоваться при строительстве, описать переход из дома в парную и уточнить планировку внутри бани.
- Главное требование к фундаменту – облегченность. Он должен быть такого же типа, как под жилым помещением.
- Дверные проемы – низкие, их порог – высокий. Это поможет лучше сохранить в парной тепло. Основная дверь должна выводиться в тамбур.
- Гидроизляция стен внутри парной выполняется при помощи пароотражающей фольги. Сверху стены надо обшить липовой вагонкой. Ее можно заменить любым другим подходящим по качеству материалом.
- Труба – изолированная. Ее требуется вывести в противоположную сторону от стены жилья. Иначе при топке дым будет проникать в жилище.
- Проведение коммуникаций – прямо из дома. Трубы и электропроводка проводятся через общую стену, либо через фундамент под парной. Разводка по бане выполняется любым удобным способом. Желательно проводить воду отдельно. Также можно сделать скважину на участке.
Если тамбур отдельный, то нужно сделать дополнительное утепление. В этом помещении располагаются скамьи и вешалка для одежды.

Дачный домик и баня
Обустройство парной
Паровая комната, безусловно, важнейшее из помещений, а в русской, парилка вообще является основной. Чаще всего он состоит из сгоревшего красного кирпича, но вы можете использовать иные материалы, даже керамику. Повышенный температурный режим, влажность в помещении диктуют конкретные правила, чтобы безошибочно подобрать материал.

Декорируем и обустраиваем
Для парной подходят исключительно лиственные породы дерева, способные на протяжении многих лет сохранять свои качества (ольха, липа, осина). Полы делают как деревянные, так с применением плитки. При возможности, предпочтение стоит отдать плитки, так как деревянный пол потихоньку будет ухудшаться.

Используем плитку на пол

Парная с окном внутри
На плите лежат естественные валуны, накапливающие, удерживающие тепло. Вода, заливающая горячие камни, провоцируют образование влажных паров, без которого вся суть парной будет утрачена. Площадь комнаты, ее высота должны быть небольшими, чтобы достигать прогрева быстро и равномерно. Рядом с печью следует установить контейнер для воды.
Еще одним атрибутом паровой комнаты являются полки. Устанавливают их в углах или около стен. При возможности, полки размещаются в несколько ярусов. Принято считать, что проще всего выдерживать горячий пар внизу, и не каждый может задержаться на верхнем ярусе. В конце концов, именно под потолком, скапливается основная масса горячего воздуха, и там очень тяжело дышать, но в этом главная польза процедуры.

Полки — атрибут каждой бани
Если размеры невелики, то сделать полки вы можете узкими, с закруглением. Строгие острые углы будут забирать полезную площадь. Лучшим материалом при подготовке полок для ванны предпочитают липу, лиственницу, что вполне оправданно с позиций практичного подхода – доски этих видов дерева устойчивы к влаге, гнили, поэтому изделия из них можно эксплуатировать больше десятка лет.

Лучший материал для полок — липа
Наиболее доступный вид древесины – сосна, которая, увы, совсем не годится для обустройства стеллажей, ее нельзя применять в парной, так как при нагревании она выделяет смолу, способную загореться, вызвать ожог.
Планировка
Схема бани 4х6 – это не только парилка и моечная. Она может быть снабжена закрытой верандой для комфортного времяпрепровождения в холодное время года, открытой террасой – для отдыха летом.

Если баня имеет второй этаж со спальней, где могут переночевать гости, – она превращается в настоящий банный комплекс. Кроме спальни, на втором этаже может быть размещен бассейн, бильярд, комната отдыха. Первый же тогда отводится под парилку и моечное отделение.
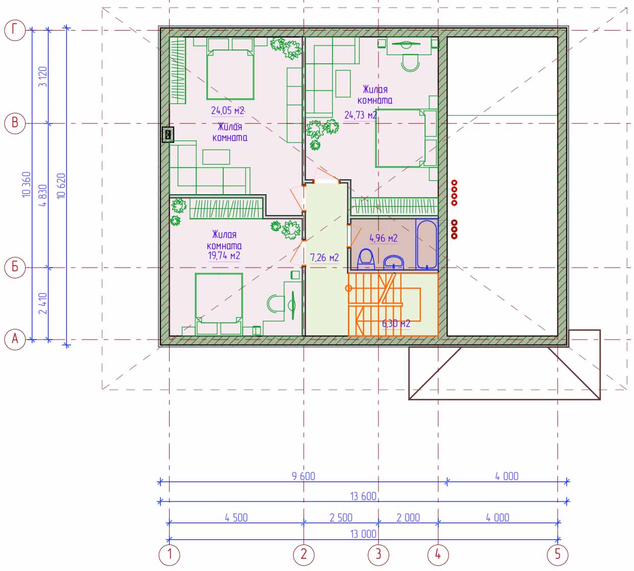
Составляя чертеж будущего строения, необходимо заранее продумать расположение и размеры комнат. Например, площадь предбанника, который предотвращает проникание холодного воздуха внутрь помещения, отмеряется из расчета 1,3 м² на человека плюс место, где будут храниться вещи и банные принадлежности.

Для парилки – другие стандарты. Здесь должно быть не менее 1 квадратного метра площади на человека плюс расстояние между печью и стенами, плюс проходы. Оптимальной высотой этого помещения считается 2-2,1м.
Вообще, стандартный план бани 4 на 6 метров состоит из:
- предбанника;
- парилки;
- моечного отделения;
- комнаты отдыха.


Веранда, терраса, мансарда – это уже на усмотрение хозяев. Габариты здания вполне позволяют «поиграть» с размерами и размещением комнат.
Будет баня возводиться своими руками или на заказ – проект необходим в любом случае. Он позволит заранее распределить комнаты, обозначить их размеры, образно представить, где что будет находиться, наиболее рационально использовать пространство.
Кровля может быть односкатной или двускатной. Второй вариант выглядит эффектнее, эстетичнее. Баня с двускатной крышей, кроме того, позволит использовать пространство для оборудования комнаты отдыха или для хранения вещей.




Хорошо, если участок оборудован скважиной – это позволит обеспечить постоянное наличие свежей воды в бане и избавит от лишних затрат.
Готовый проект гостевого дома с баней (229 м2)

Если вы с детства мечтали о собственном сказочном домике или являетесь родителем мечтательного ребенка, данный проект – идеальное решение для вас.

Один дом объединяет в себе баню, жилое помещение и гараж, кроме того здесь имеется настоящее подземелье (подвальный этаж).

В доме присутствует большая терраса, общая комната, прихожая, три ванных комнаты и три спальни, кухня, парилка и дополнительная комната отдыха.

Данный проект рассчитан на проживание большой семьи, а также подойдет для человека, который часто приглашает гостей.

Профилированный брус – один из самых популярных материалов для изготовления домов и бань сегодня. Компактный двухэтажный дом с баней идеально подойдет для удобного проживания небольшой семьи или одного человека.

Невероятно красивый деревянный дом с баней и мансардой, представленный в данном проекте, не мог быть спроектирован ни в одной другой стране мира, поскольку он имеет исконно русский экстерьер.

На первом основ ном этаже дома размещается парная, ванная комната, гостиная и свободная комната, которая может служить отдельной кухней, спальней, кабинетом либо мастерской.

Лестница, расположенная в гостиной комнате ведет в просторный холл второго, мансардного этажа, на котором расположены две одинаковых по площади и строению спальни.

Двухэтажная баня из клееного бруса, которая окрашена в яркие привлекательные цвета, внутри условно разделена на два блока: развлекательный и жилой.

Этот проект представляет один из немногих домов с баней, которые является по большей степени баней, чем домом. Большой акцент в проекте сделан на вместительную парилку, комнату отдыха и другие необходимые для комфортного времяпровождения в бане помещения.

Второй этаж состоит из комнаты отдыха и бильярдной, которые не разделены между собой четкой границей и представляются скорее одной большой развлекательной комнатой.

У многих людей, планирующих постройку частного дома и любящих баню, нередко появляется мысль о соединении этих помещений. А бывает так, что участок невелик и места на нем для размещения стоящей отдельно бани попросту нет. Какими могут быть варианты совмещения бани с домом?


Назначение гостевого домика с баней
Проекты гостевых домов с баней предназначены в первую очередь для приема гостей, с целью обеспечить себе и им полноценный отдых. Это наиболее популярная конструкция, если баня планируется как место для дружеских посиделок.
Гостевой дом с баней отличается от полноценного коттеджа своим конструктивным исполнением, так как в первую очередь эта постройка подразумевает под собой не столько жилье, сколько место для отдыха. Первый этаж почти весь отводится под баню, а на втором (чаще мансардном) этаже размещают спальную комнату, бильярдную или спортзал. Это позволит объединить два функциональных здания одним, не увеличивая при этом занятую площадь участка.

Гостевой дом можно дополнить небольшим бассейном, в котором можно остыть после парной Источник ko.decorexpro.com
Если такой дом будет использоваться редко, то для того чтобы помещения не «простаивали» его можно сдавать в аренду и тогда все финансовые вложения быстро окупятся.
Особенности проектов гостевых домов
Основным отличием гостевого дома с парной от обычной привычной всем бани – это возможность жить в этом строении как периодически, приезжая только на отдых, так и постоянно. Здесь будет все необходимое для этого – кухня, санузел и спальные комнаты. Так же все системы коммуникации, такие как канализация и водопровод, будут доступны для использования в любое время года.
Материал для строительства гостевого дома с баней необходимо выбирать максимально безопасный для человека, даже при постоянном воздействии на него повышенной влажности и высоких температур. Лучшим вариантом будет деревянная постройка, все основные конструкции которой для увеличения эксплуатационного срока обрабатываются антисептиками и пропитками и другими защитными составами.

Ряд проектов гостевых домиков предусматривают наличие просторной террасы с мангалом или полноценной печью для приготовления барбекю Источник pallazzo.su
Размещение гостевого домика на участке
Удобство использования гостевого дома с баней зависит не только от его внутреннего наполнения, но и от того, в каком именно месте на участке он расположен. В соответствии с правилами пожарной безопасности возведение построек на участке возможно не ближе чем на расстоянии 6 метров от других зданий. Помимо этого, учитывая назначение гостевого домика, необходимо предусмотреть наличие парковочных мест, а так же дополнительной площадки для отдыха, желательно с мангалом и беседкой.

Пример размещения гостевого домика на участке Источник pallazzo.su
С целью финансовой экономии гостевой дом нужно строить максимально близко к основному дому, но при этом не нарушая пожарной безопасности, для того чтобы прокладка систем коммуникации не потребовала больших вложений.
Как пристроить баню к дому? Особенности строительства дома, совмещенного с баней
После завершения составления проекта и закупки всех материалов можно переходить к возведению бани, процесс постройки включает в себя следующие этапы:
Этап 1. Подготовка территории
Строительство любого здания начинается с подготовки местности. Ее нужно очистить от мусора и растений, причем желательно проводить уборку не только в пределах территории будущих построек, но и с запасом с каждой стороны хотя бы одного квадратного метра.
Этап 2. Возведение фундамента
Фундамент — это основа здания, поэтому его нужно делать особенно тщательно. Тип фундамента зависит от выбранного материала для строительства. К примеру, если вы планируете возвести одноэтажное деревянное здание, то можно сделать ленточный фундамент. Для построек из кирпича потребуется более надежное основание.
Для бани и дома нужно делать отдельный фундамент, поскольку повышенный уровень влажности может вызвать образование трещин, что в свою очередь повлечет отделение фундамента от общей постройки.
На этой же стадии следует подготовить вывод канализации.
И дома может быть построен из разных материалов: бруса, бревна, газобетона, кирпича и т. д. Каждый из этих вариантов имеет свои преимущества, недостатки и особенности укладки.
Брус является самым популярным материалом, строить из него быстро и легко. Он не нуждается в дополнительной отделке, он имеет небольшой вес и практически не дает усадку.
Баня из бревна — это более сложный вариант, но этот материал более устойчив к негативным воздействиям внешней среды. Если брус может трескаться в разных местах, то бревна чаще по вертикали, они лучше сохраняют тепло. Обойдется такая постройка дороже, к примеру, цена на проект дома-бани из бревна 6х6 и его реализацию составляет 600 тысяч рублей, при этом аналогичная постройка из бруса будет стоить около 400 тысяч рублей.
Построить баню из газобетона легко, плиты имеют большие размеры, поэтому строительство не займет много времени. Недостатками материалов являются гигроскопичность, поэтому придется делать качественную гидроизоляцию, и неэстетичный внешний вид, поэтому они нуждаются в дополнительной отделке.
Из кирпича получаются прочные и надежные строения, которые способны простоять десятки лет. Но строить баню из кирпича лучше в том случае, если имеются навыки, поскольку этот процесс достаточно сложный.
Если вы делаете пристройку бани к дому, то важно сделать правильную стыковку, в противном случае между баней и домом появится зазор. Обеспечить прочную связку можно, используя прутья арматуры, которые нужно вбить в стены дома и после прикрепить к стенам бани
Этап 4. Установка крыши
Крыша должна быть цельной, иначе здание значительно быстрее начнет разрушаться. Рекомендуется использовать двух- или четырехскатную крышу для совмещенной постройки, одно- и двухскатную — для пристройки.
Для каждого из помещений нужно сделать отдельный дымоход, а также сразу монтировать систему отливов.
Материал для кровли может быть разным, сегодня высокой популярностью пользуются металлочерепица и оцинкованный профиль.
Этап 5. Внутренняя отделка
Завершающим этапом является тепло- и гидроизоляция, внутреннее оформление бани. Для оформления стен и потолка в бане чаще всего выбирают — натуральный материал, который помогает создать нужную атмосферу в бане, имеет высокую надежность и достаточно прост в установке.
В бане также необходимо установить печь, полки, оформить комнату отдыха (если она предусмотрена) и т. д.

Дом и баня под одной крышей — это чаще всего единственное решение для небольших участков. Этот вариант имеет свои преимущества, он помогает снизить расходы на строительство и рационально использовать площадь земельного участка.
Дом — это внешняя оболочка семейного очага. Только там вы всегда сможете почувствовать уют, любовь и заботу. Но для начала его необходимо еще построить.
Дом может быть для круглогодичного проживания, дачный либо гостевой , который вы будете использоваться лишь иногда.
Преимущества и недостатки совмещенной конструкции дома и бани
Современные проекты частных бань предусматривают различную технологию строительства. Парная, совмещенная с жилым домом, — один из наиболее востребованных типов построек.
Преимущества:
- Дополнительный комфорт и удобное использование совмещенного строения для жильцов.
- Домашняя парная — это замечательное место для оздоровления и укрепления организма, когда все процедуры проводятся внутри дома.
- Экономия строительных материалов при возведении двух строений.
- Компактное размещение постройки на малогабаритных участках с возможностью подключения к действующим коммуникациям.

Недостатки:
- Несоблюдение технологии строительства, а также нарушение правил по монтажу гидро-, паро- и теплоизоляции в бане может привести к разрушению конструкции дома.
- Совмещенные строения требуют правильного проектирования и монтажа отопительной системы. В этом случае необходимо устанавливать мощное отопительное оборудование, способное обогреть два строения, что повлечет за собой увеличение расходов на их обслуживание.
- Возведение бани требует монтажа отдельной дымоотводной трубы, а следовательно дополнительного выходного отверстия на кровле.
- Слабая вентиляционная система в бане может привести к сырости и появлению плесени по всему периметру дома.

Этапы строительства
- Возведение собственными руками начинается с основания. В месте, где планируется пристройка, нужно вскрывать фундамент дома и на том же уровне закладывать новое основание. Универсальным решением является устройство монолитного ленточного фундамента.
- Стены поднимаются с применением того же материала, используемого при строительстве основного дома. Когда дом кирпичный, стены можно поднимать как из кирпича, так и из пеноблоков, стоимость которых значительно меньше. Для того чтобы стыковать стены пристройки и основного здания, можно применить связку из арматурных прутьев. В стены основного здания насверливаются отверстия под отрезки арматуры. Прутья вбиваются в отверстия таким образом, чтобы их противоположный конец был заделан в кладку стен пристройки. Стены пристройки поднимаются на пару кирпичей ниже высоты стен основного здания.
- Крыша пристройки делается односкатной с тем расчётом, чтобы ее наивысшая точка примыкала к стене дома и таким образом заходила под основную крышу. Перекрытия потолка строятся из бруса 100*100 мм или из доски аналогичной ширины, положенной на ребро.Снизу и сверху балок делается обрешетка, в которую закладывается паро- и теплоизоляция. Стропила кровли монтируются таким образом, чтобы угол наклона составлял 20%. В качестве кровельного материала как наиболее бюджетное решение можно применить асбестоцементный шифер.Все щели и зазоры на месте примыкания шифера к стене основного дома заделываются монтажной пеной.
- Самым простым и эффективным методом обустройства пола является заливка стяжки. Стяжка заливается с незначительным уклоном в направлении сливной трубы бани. На этом же этапе монтируется сливной трап. В качестве напольного покрытия рекомендовано применение керамической плитки с рельефной нескользящей поверхностью.
- Отделка интерьера заключается в обшивке стен и потолочного перекрытия бани и дома деревянной вагонкой. В качестве альтернативы вагонке, для облицовки стен можно применить прочную и долговечную керамическую плитку. На этом же этапе устанавливается оборудование, необходимое для эксплуатации бани, включая специальную мебель, печь, электрическую проводку к розеткам и осветительным приборам и т.д.
Материалы
Основа бани – это стены, они определяют надежность постройки, качество теплоизоляции и в большой степени удобство внутри.
Чаще всего стены бани возводят из:
- кирпича;
- пенобетона, газобетона;
- арболита;
- дерева.




Кирпичные стены класть очень тяжело. У них высокая теплопроводность, поэтому потребуется усиление теплоизоляции. Под стены из кирпича необходимо укладывать фундамент.
Арболитом называют смесь цемента с органическими заполнителями
, в основном, измельченной древесиной. Свойствами он схож с пенобетоном, изготавливается также в виде блоков. Изготовить его можно самостоятельно прямо на строительной площадке, технология очень простая. Основной недостаток один – невысокая устойчивость к воздействию влаги.

Пенобетонные и газобетонные блоки обладают гораздо более высокими теплоизоляционными качествами, к тому же они значительно легче и не требуют массивного фундамента под собой.
Размер стандартного стенового пеноблока — 20х30х60 см, и он один равен 13 силикатным кирпичам. Возводить стены из пеноблоков несложно и самому.



Дерево чаще всего используют для строительства бань в нашей стране. Древесных пород, подходящих для этого, достаточно, опытные строители выделяют лиственницу, сосну, кедр.
Чтобы поднять сруб бани, подойдут такие материалы:
- бревна (цельные или оцилиндрованные);
- брус пиленый с прямоугольным сечением;
- профилированный брус;
- клееный профилированный брус.


Можно использовать как влажный материал, так и высушенный. Для сруба лучше подойдет первый. Чем больше влажности в материале, тем больше сруб усядет. Клееный брус практически не нуждается в усадке. Сруб из бревен усаживается дольше и больше остальных. Не нужно и упоминать, что дерево – это самый экологичный материал, поэтому для возведения бани подойдет лучше всего.


Преимущества дома с баней или сауной
Первое преимущество, это возможность сэкономить. Если не нужно отдельно закладывать фундамент, возводить стены и крышу, то выигрыш очевиден. Добавьте сюда еще общие с инженерные сети. Итого, счет 2:0 — в пользу встроенной баньки.
А, кроме того, реализовав такой проект, вы сбережете место под сад или детскую площадку. Согласитесь, для тех, кто владеет небольшими земельными наделами это весьма существенный плюс. Ну что, засчитывается? Тогда, 3:0.
Последнее преимущество касается удобства пользования. Если вы не морж, то вам вряд ли доставит удовольствие пробежка через весь двор из бани в дом по морозу или под дождем. А если в семье есть пожилые люди или дети, то это уже не только вопрос вашего личного комфорта, но и забота о членах семейства. Еще одно «за» в пользу данного варианта.
Подведем итог — 4:0 в пользу проекта дома с встроенной баней.
Расположение бани
Не имеет значения, на каком этаже будет находиться баня или сауна. Главное, чтобы поближе к ванной и санузлу. Это значительно упрощает прокладку инженерных сетей. А, следовательно, дает экономию на монтаже и материалах.
Как правило, классическая мини-баня состоит из парной, раздевалки и душевой. Но, учитывая индивидуальные пожелания заказчика, ее можно дополнить ванной, комнатой отдыха и санузлом. Но тогда это уже больше будет похоже на банный комбинат.
Особенности реализации проекта дома с баней
Выбирая проект дома с баней, необходимо обратить серьезное внимание на прокладку инженерных сетей. Наша компания предлагает проекты, где неукоснительно соблюдаются следующие нормы:
- Для качественной гидроизоляции пола необходимо помнить, что сначала укладывается несколько слоев специальной изоляции, утеплитель, а сверху — плитка.
- Теплоизоляция.
Парилка должна быть обшита деревом. Если для деревянных домов это само собой разумеется, то в домах из газобетона или кирпича, это хоть и дополнительное, не необходимое условие: дерево хорошо держит тепло и защищает от жара. Причем, для обшивки нужно использовать качественную древесину, чтобы избежать появления грибка. Но забывать о специальном утеплении стен и потолка тоже не стоит. - Вентиляция должна обеспечивать качественный обогрев парилки, при этом удаляя излишки влаги и препятствуя образованию конденсата. Поэтому стоит озаботиться подбором оборудования, способного, минимум, 6 раз в час осуществить смену воздуха в помещении.
Еще один важный момент, который необходимо учесть — пожарная безопасность.
Во-первых, все деревянные детали нужно обработать специальными антипиреновыми пропитками.
В современных загородных усадьбах стало модным проектирование собственной бани (сауны), которая строится вместе с домом. Она позволяет расширить возможности домашнего отдыха, добавляет жилью удобства и комфорта. В каталоге «Domamo» вы можете найти варианты проектов домов с баней, адаптированных для строительства на территории России при использовании участков разной площади и рельефа.
Гостевой домик-баня: особенности, проекты, фото
Существует большое количество вариантов дизайна интерьера и экстерьера домиков-бань, причем изготавливаются бани из различных материалов: дерева, кирпича, пеноблока, керамзитобетона и т. д.
Что же представляет собой современный гостевой домик-баня?
В таком доме проведены коммуникации и есть минимальный набор удобств: небольшая кухня, душевая, санузел и прихожая, но на эти помещения выделяется минимальное количество места.
Вся остальная площадь домика-бани делится в пропорции 50 на 50: первую часть занимает предбанник, парильная и моечную, а вторую – большая комната отдыха и спальня. Весь дом, как уже было сказано, отделывается в едином стиле.
Рекомендуем прочитать:
Проекты бань 6 на 7: особенности составления, фото и схемы
В гостевой комнате рекомендуется поставить раскладные диваны, чтобы вы или ваши гости могли переночевать. Нередко в гостевой также организуют различные развлечения: в ней располагают бильярдный стол, тренажеры, настольный теннис и т. д.
Часто проекты гостевого дома с баней предусматривают также наличие дополнительных удобств в виде веранды, террасы, бассейна. Безусловно, с ними посещение бани становится еще более приятным. На веранде или террасе можно поставить стол со стульями и в теплую погоду проводить время между посещениями парной не в душном помещении, а на свежем воздухе. Некоторые также ставят печь, тем самым делая зону для барбекю.
После посещения парной полезно окунуться в прохладную воду. Конечно, это можно сделать в моечной, но большинство предпочитает искупать в озере или реке. Но если водоемов поблизости нет, то прекрасным вариантом будут проекты бань с бассейном или купелью.
Большинство проектов предполагает постройку здания в 2 этажа и, конечно же, из экологически чистого материала, к примеру, популярностью пользуются бани из бруса. На первом этаже обычно делают парилку, моечную и тамбур, а второй этаж – под комнату отдыха или мансарду.
Деревянная постройка дает возможность ощутить близость с природой, этот материал экологичен и абсолютно безопасен.
Проекты бань гостевых бруса не ударят сильно по бюджету. Дерево – это легкий материал, поэтому нет нужды делать сложный и дорогостоящий фундамент. При строительстве бани из бруса отсутствует потребность в отделке – дерево само по себе выглядит красиво и аккуратно.
Но несмотря на многочисленные достоинства дерево имеет существенный недостаток – повышенную пожароопасность. Поэтому нужно соблюдать все требования пожарной безопасности, а также не располагать постройку слишком близко к соседним строениям на участке.
Все проекты также делятся на несколько видов в зависимости от размеров бани с гостевой комнатой.
Проект бани 5,9 на 6,5 м
Данный проект гостевого домика-бани придется по душе людям, которым нравятся большие комнаты без перегородок. Несмотря на то, что баня достаточно компактная, в ней есть все необходимые удобства. Общая площадь постройки составляет 44 квадратных метра.
Проект бани 6 на 8 м
Проект предусматривает наличие террасы, причем возможен как закрытый, так и открытый вариант. Данный проект отличается большой площадью комнат, поэтому вам не придется искать место, чтобы разместить всех своих друзей – здесь его предостаточно!
Проект бани 6 на 5 м
Небольшой по площади дом, у которого есть мансардный этаж, включающий 2 комнаты. Подобной дом подойдет для летнего проживания небольшой семьей или отдыха компанией друзей.
Выбор материала
Построить такой дом можно из разных материалов в зависимости от предпочтений хозяина и, например, его желания возвести здание своими руками. Многие
люди останавливают свой выбор на дереве, газобетоне, пенобетоне
. Но если возводить строение из бруса, оцилиндрованного бревна или блоков может человек, имеющий лишь небольшие навыки в таком деле, то для строительства из кирпича лучше привлечь специалистов высокого уровня, поскольку нарушение технологии работы обойдется слишком дорого.
Также при выборе материала нужно руководствоваться финансовыми затратами, которые предстоят для осуществления проекта. Очевидно, что строительство деревянных домов-бань выйдет дешевле, чем возведение кирпичных.


Финансовая сторона также играет не последнюю роль при выборе материала кровли. Выгодно использовать оцинкованный профиль, металлочерепицу. Под их укладку необходимо будет организовать обыкновенный каркас из деревянных лаг.
Зато модные с некоторых пор андулиновые крыши потребуют работы профессионалов. Оправдывается это эффектным и респектабельным внешним видом готовой крыши.



























































